Ryan Deakin, the president of Haval Group, has applied to redevelop a property in the Edgemont area of the District of North Vancouver.
Deakin will be holding a public information meeting on Thursday, January 23, at the Delbrook Community Centre, from 6 pm to 7:30 pm.
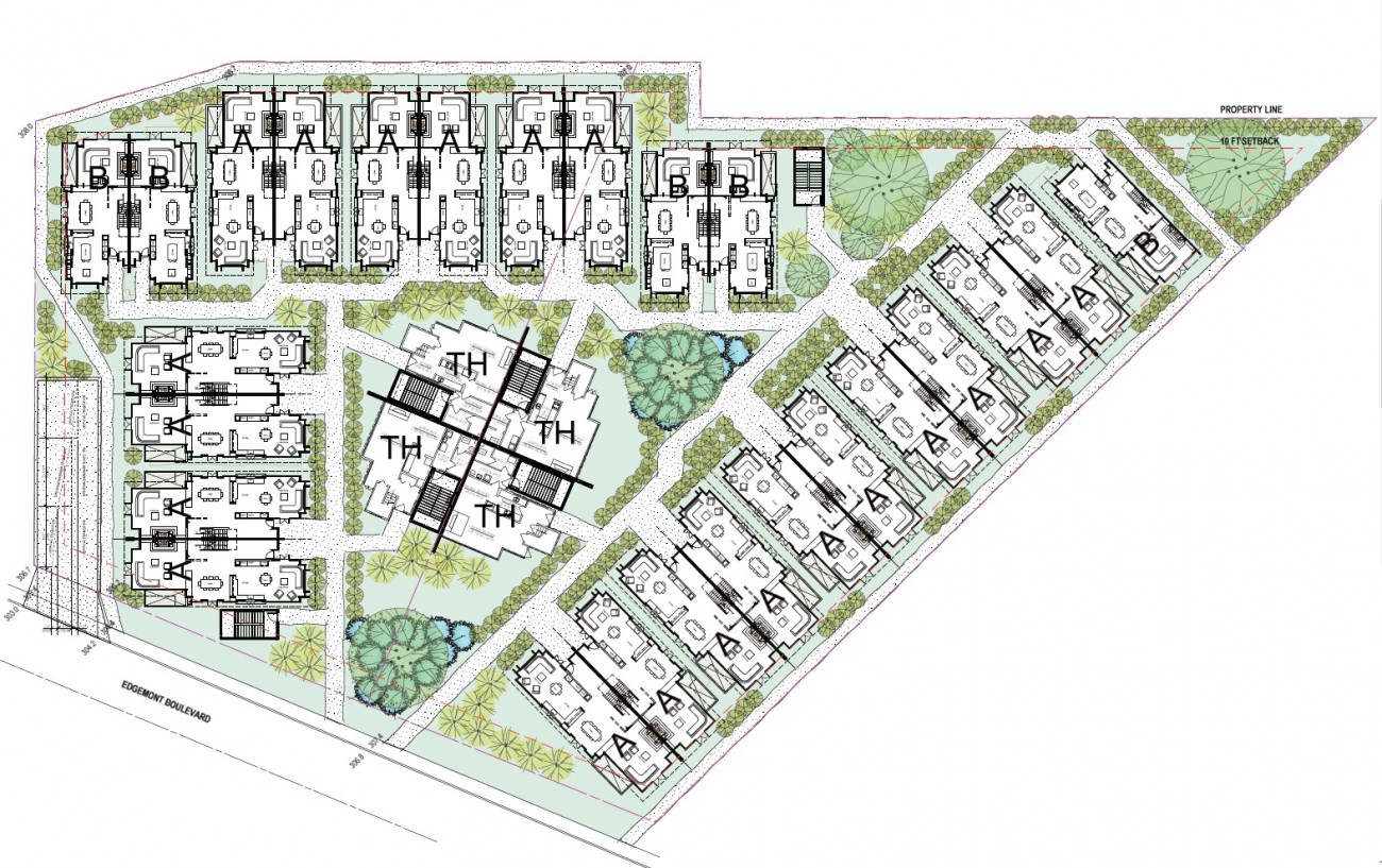
The proposal for 3700-3718 Edgemont Boulevard is to relocate an existing heritage fourplex on the site and then add either:
1, An additional 25 duplex homes (for a total of 29 homes) plus 40 parking stalls in an underground parkade, or
2, an additional 33 row homes (for a total of 37 homes) plus 51 parking stalls in an underground parkade
There is currently one heritage fourplex in the centre of each lot, designed by architect Fred Hollingsworth and built in 1951.
There is also an infill building in the northwest corner with two additional homes, built in 1971.
The two heritage fourplexes are listed on the District’s Community Heritage Register (July 2012) as part of Shalal Gardens.
In both housing options being proposed, the relocated fourplex would be fully restored, designated as a heritage resource, and secured as below-market rental housing for low-to-moderate-income families for a minimum of 10 years.
If this project proceeds, it will require rezoning and a development permit for form and character as well as a heritage revitalization agreement, and a conservation and maintenance plan.
Community members will have an opportunity to ask questions and share thoughts about the proposal at the public information meeting next Thursday.







My personal view of this project is that there is far too little “skin in the game” for the proposed project. At the very least the 4 Heritage units should be offered at below market rental in perpetuity. The other 25 to 33 units – being at market value, also seem to be misaligned with the current priority for new housing units for the DNV.